

Studie 2025
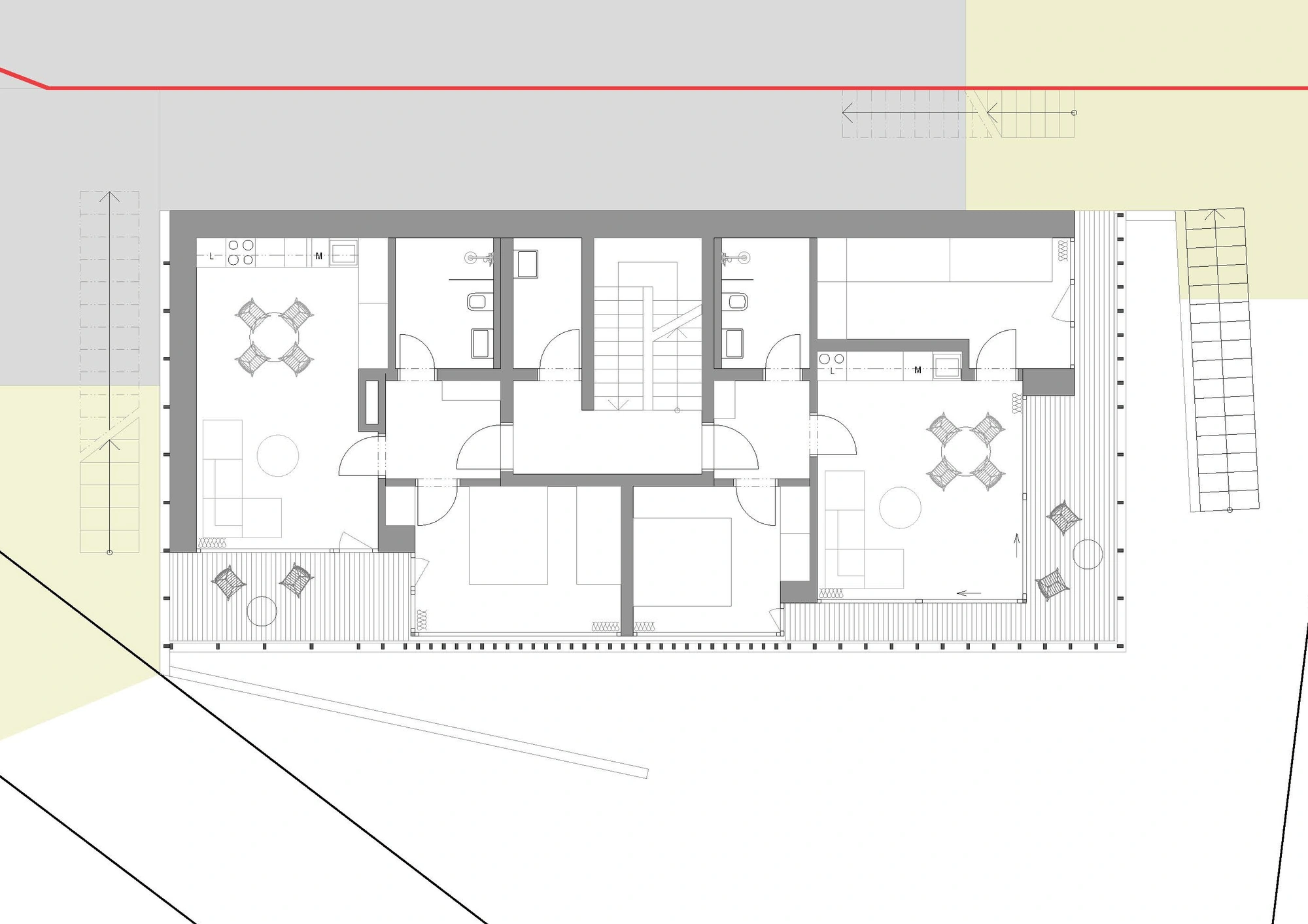
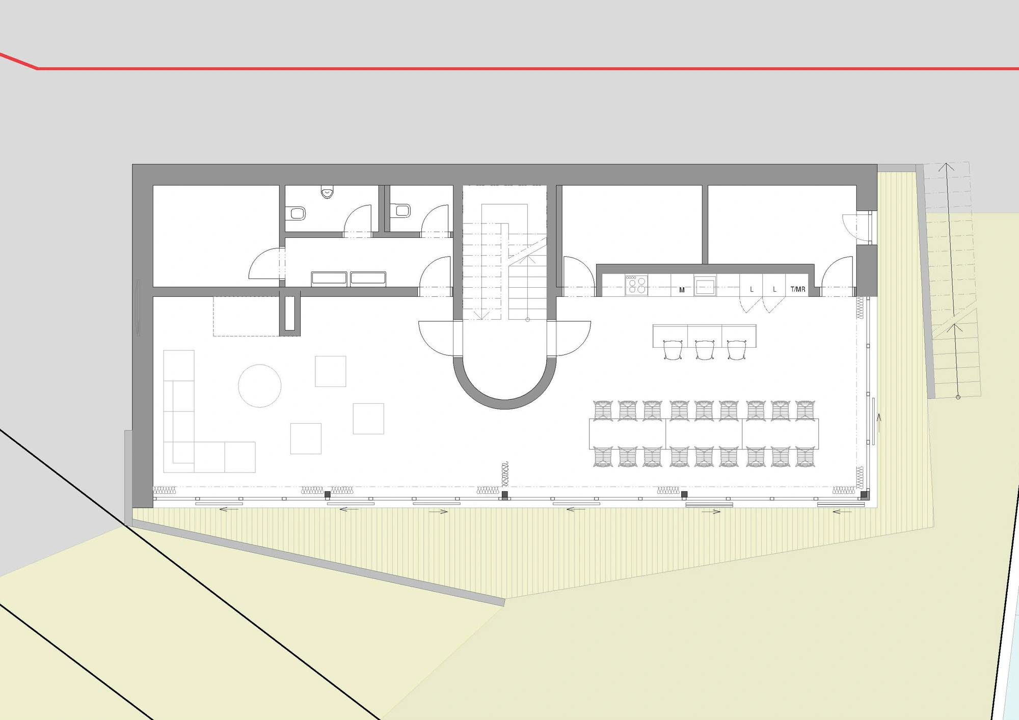
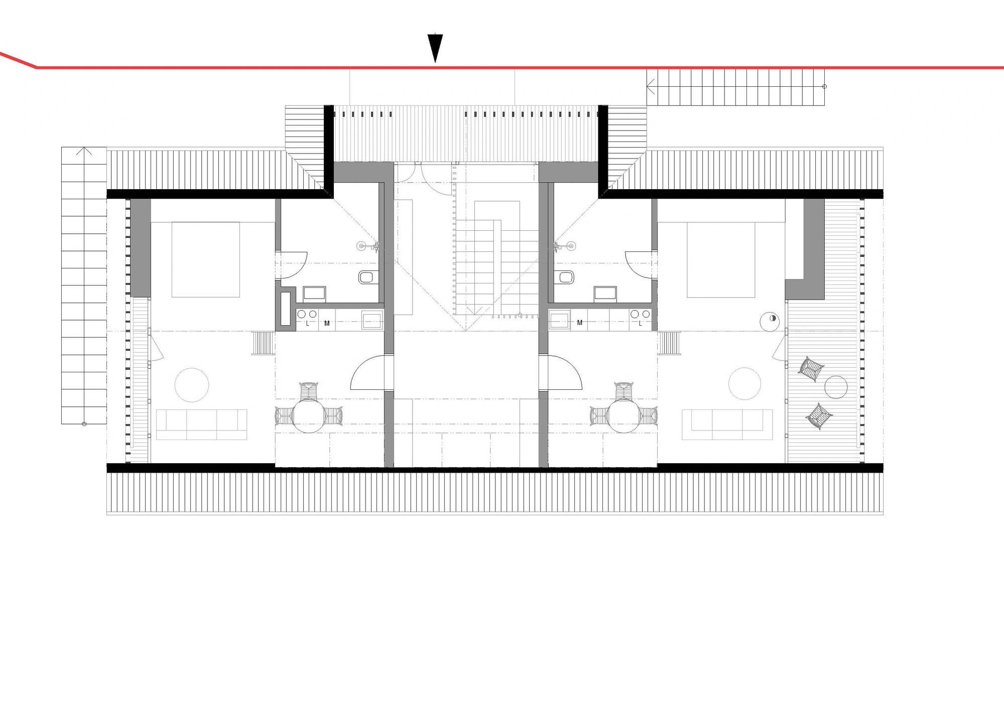
Objekt pro ubytování rodiny a jejích přátel v krásné přírodě Českého Ráje. Zdánlivě jednoduchá stodola skrývající intimní prostory splňuje přísná pravidla pro stavby v CHKO, především ochraně proti nalétávání ptáků - dřevěné laťování za velkými proskleními i posuvné okenice se tak stávají hlavním motivem dřevěných fasád. Dvě podlaží jsou zapuštěna do prudkého svahu a příjezdová pohledová část se vstupním vikýřem je tak velmi nenápadná.
Vizualizace: ZAN studio
Plocha pozemku: 3974 m², zastavěná plocha: 188 m², užitná plocha: 338 m²
